Houseal Lavigne :: Chicago, Illinois

Architectural

Story

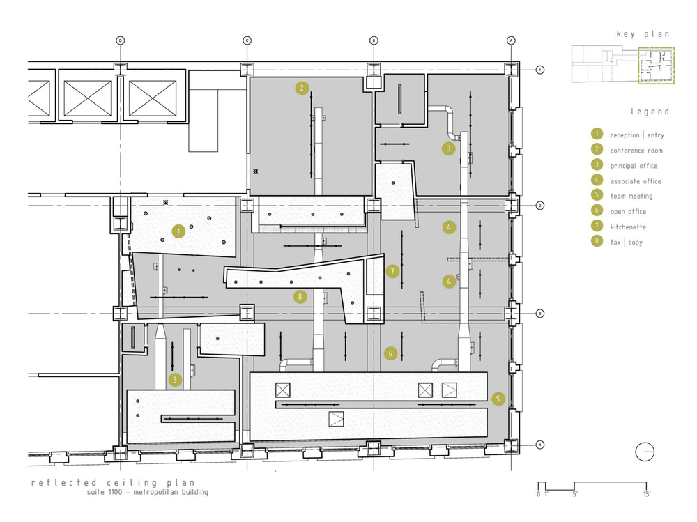
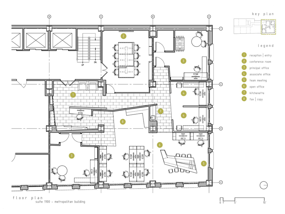
The renovation of an eleventh floor suite in the 1926 Art Deco Metropolitan Building, located in the heart of the Chicago theater district, provided a unique opportunity for the insertion of a progressive planning & urban design firm looking to increase their profile within the city of Chicago.  An intervention of translucent acrylic, aluminum, stained MDF & birch panels generates the presence of entry while preserving the found condition of the existing suite; previously concealed below aging ceiling tile and threadbare carpeting.  The office thrives in an open collaborative setting, wrought with experimentation of tectonics and materials.  The reduction of public|private separation to its most essential condition permits the translation of the environment into a simple container for programmatic insertions; comprised primarily of furnishings.  Workstations allow for considerable layout flexibility and are supported with moveable storage cabinets and desk mounted shelving.  Aluminum, birch and MDF engage in an expressive dialogue in the detailing of the workstations, team table, conference table and reception millwork.  Formal articulation of the space responds to the functional requisites of the people and equipment, manifesting in an intended space for the practice of community planning and design

Facts

  • Title: Houseal lavigne
  • Subtitle: Chicago, illinois
  • Phase: Complete